Ref # : GE3550
For Sale € 295,000.00
PLOT (CENTRAL)
Qala, GOZOOverview
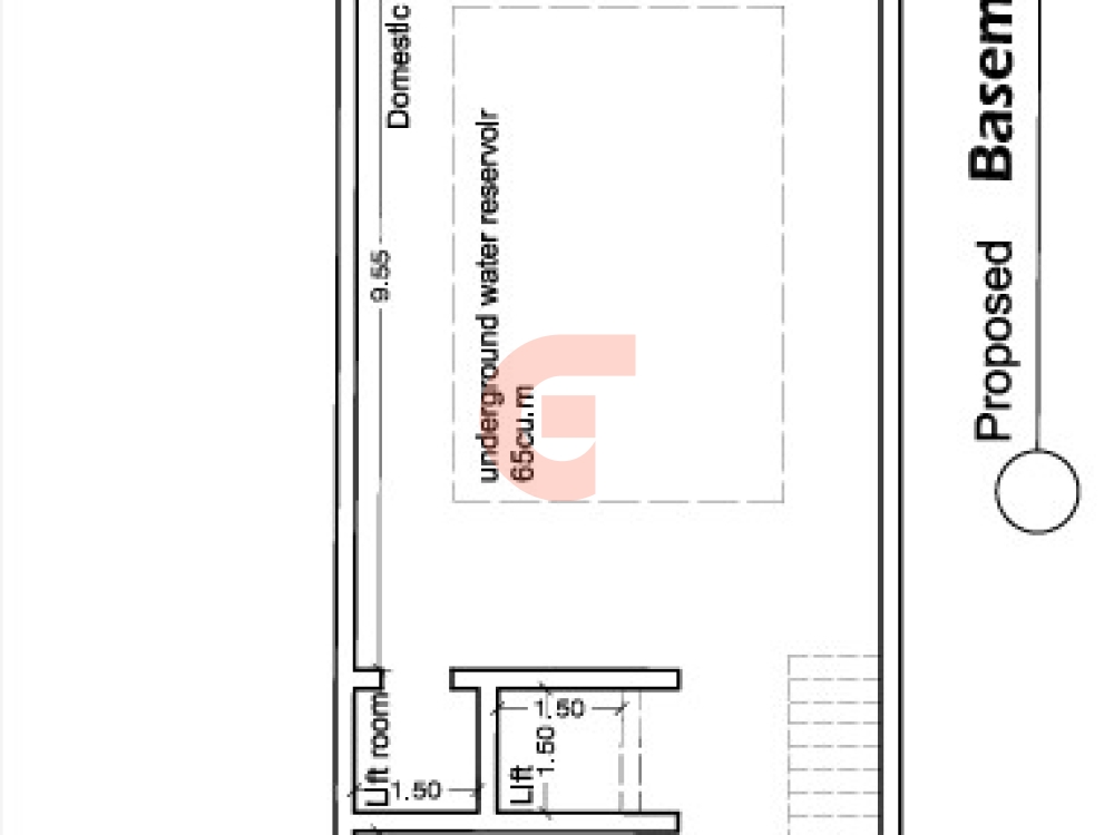
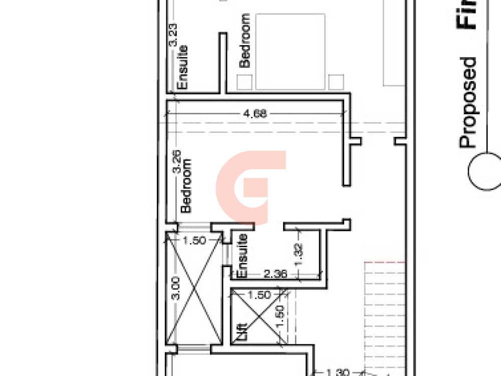
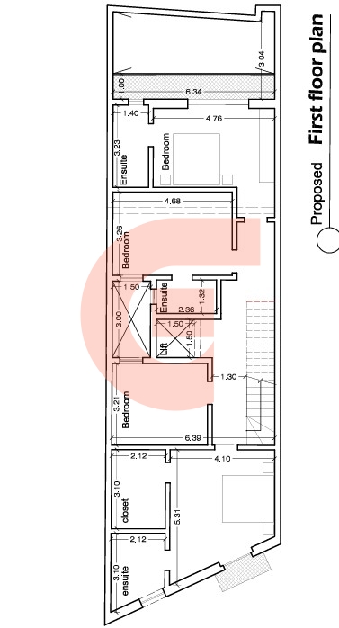
Plot of Land with Permits in Hand to build a four-bedroom House measuring approximately 154 sqm (floor area) set in an alleyway in the heart of this popular village in Gozo. Great Potential for rental purposes. FREEHOLD
Neighborhood
- Super market: 3 minutes by Walk
- School: 5 minutes by Walk
- Beach: 5 minutes by Car
- Coffee shop: 2 minutes by Walk
- Bus station: 2 minutes by Walk
- Train station: 2 minutes by Walk
- Police station: 2 minutes by Walk
- Hospital: 15 minutes by Car
- Town center: 2 minutes by Walk
- Shopping center: 2 minutes by Walk
Features
Exterior Amenities
Giovanni Real Estate
One of the successful real estate agency in the Maltese Islands offering property for sale and turnkey solutions in Malta and Gozo. A vast range of,Apartments, Penthouses Maisonettes, Terraced Houses, Traditional Farmhouses, Houses of character ,Bungalows, Villas, Commercial outlets, property investments and properties for sale are available in Malta and Gozo.
Check out our website, the best place to start your real estate search. You can also contact our real estate agent for a customized selection of the property types you are interested in, including professional advice and opinion.





