Ref # : GE3255
For Sale € 480,000.00
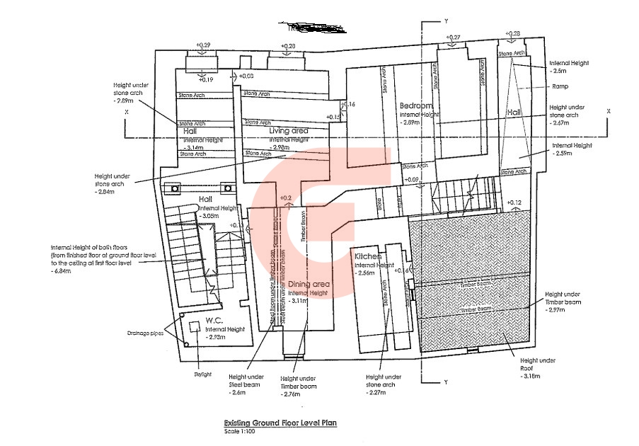
UNCONVERTED HOUSE IDEALLY FOR B&B
GOZOOverview
Unconverted house of character located in the very centre ideally for B&B
Neighborhood
- Park: 5 minutes by
- Coffee shop: 1 minutes by Walk
- Bus station: 1 minutes by Walk
- Police station: 5 minutes by Walk
- Hospital: 10 minutes by Walk
- Town center: 1 minutes by Walk
- School: 5 minutes by Walk
- Exhibition: 2 minutes by Walk
- Super market: 2 minutes by Walk
Related Properties
GE3411, Centrally located Townhouse with Garden
For Sale
€ 560,000.00
GOZO
GE3536, HAIRDRESSER SHOP
For Sale
€ 750,000.00
GOZO
GE3529, Apartment
For Sale
€ 275,000.00
GOZO
Giovanni Real Estate
One of the successful real estate agency in the Maltese Islands offering property for sale and turnkey solutions in Malta and Gozo. A vast range of,Apartments, Penthouses Maisonettes, Terraced Houses, Traditional Farmhouses, Houses of character ,Bungalows, Villas, Commercial outlets, property investments and properties for sale are available in Malta and Gozo.
Check out our website, the best place to start your real estate search. You can also contact our real estate agent for a customized selection of the property types you are interested in, including professional advice and opinion.



